Diese moderne und barrierefreie Wohnung befindet sich in einem energieeffizienten Neubau (KfW-55) namens "Norder Speicher 83" der im Juni 2021 fertiggestellt wurde. Das Gebäude liegt zentral in der Norder Fußgängerzone und bietet trotz dieser Lage eine angenehm ruhige Wohnatmosphäre. Eine umweltfreundliche Fernwärmeversorgung sowie ein Fahrstuhl mit stufenlosem Zugang unterstreichen den komfortablen und nachhaltigen Charakter des Hauses.
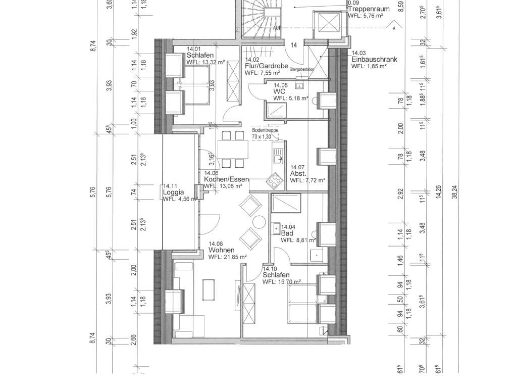
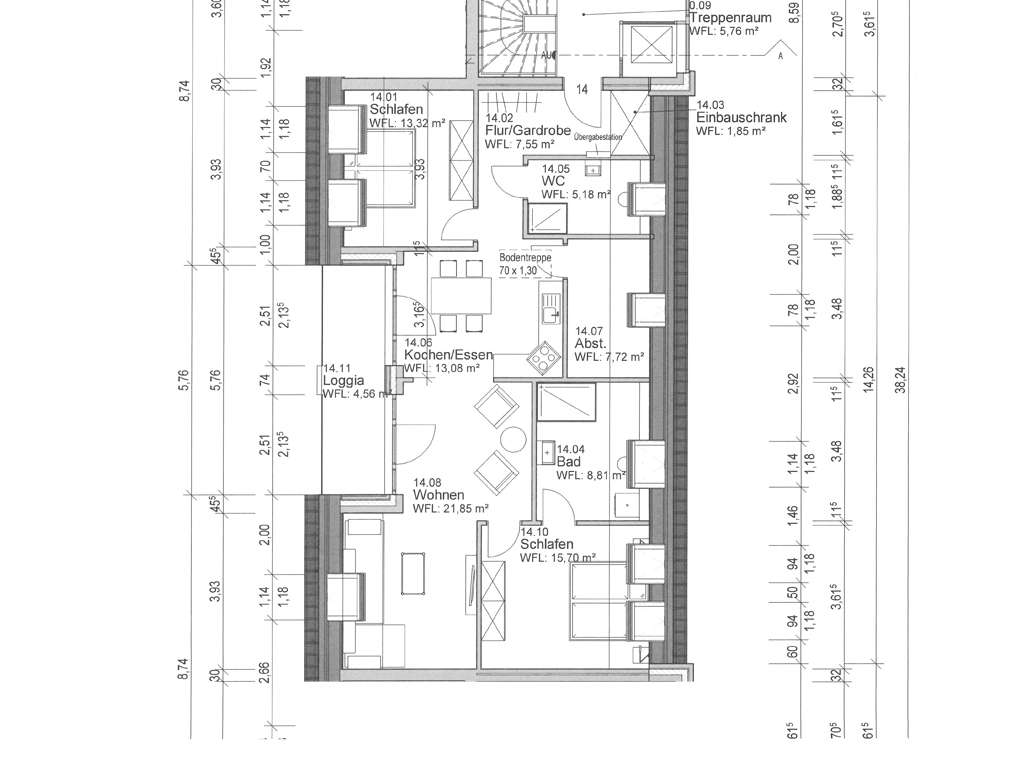
Die Wohnung umfasst rund 100 m² Wohnfläche und verfügt über einen ausbaufähigen Spitzboden mit zusätzlichen 15 m² , der sich über die gesamte Wohnungsbreite erstreckt und vielfältige Nutzungsmöglichkeiten eröffnet. Sämtliche Türen sind barriere- sowie seniorengerecht mit einer Breite von einem Meter gestaltet.
Zwei helle Tageslichtbäder mit großzügigen Duschen, zwei gut geschnittene Schlafzimmer sowie ein offener Wohn- und Essbereich mit hochwertiger Einbauküche sorgen für ein modernes, komfortables Wohngefühl. Die angrenzende Loggia erweitert den Wohnraum auf angenehme Weise. Ein besonderer Vorteil ist der direkt vor dem Hauseingang gelegene PKW-Stellplatz.
Die Lage überzeugt durch die Kombination aus Innenstadtleben und Nähe zum Meer mit seinen vielfältigen Freizeit-, Erholungs- und Kulturangeboten. Norden verfügt zudem über ein umfassendes Schul- und Ausbildungsangebot. Die medizinische Versorgung ist durch ein Medizinisches Versorgungszentrum in Norden sowie die nahegelegenen Kliniken in Aurich und Emden gewährleistet. Ergänzend entsteht bis 2029 ein neues Zentralklinikum in Georgsheil – ein Pluspunkt insbesondere für medizinische Fachkräfte.
Diese Wohnung vereint moderne Ausstattung, Energieeffizienz, Barrierefreiheit und ein attraktives Ausbaupotenzial zu einem hochwertigen Wohnangebot für Eigennutzer wie Kapitalanleger gleichermaßen.














