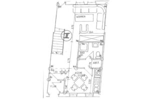
Dieses gepflegte Reihenmittelhaus aus dem Baujahr 1993 liegt in attraktiver Lage unweit des Norder Marktplatzes. Treten Sie ein! Über den Eingangsbereich mit Garderobe gelangen Sie unmittelbar in die großzügig geschnittene Wohnküche, die mit einer charmanten Holzbalkendecke überzeugt.
Auf der rechten Seite befindet sich die funktionale Einbauküche, ausgestattet mit Herd, Kühlschrank, Dunstabzugshaube sowie einer kompakten Spülmaschine. Darüber hinaus bietet der Raum ausreichend Platz für einen Essbereich.
Vom Kochbereich aus führt eine Tür in ein Durchgangszimmer mit praktischen Abstellmöglichkeiten, von dem aus das innenliegende Badezimmer erreichbar ist. Dieses ist zeitlos weiß gefliest und verfügt über eine Dusche, ein WC sowie ein Handwaschbecken mit Durchlauferhitzer. Auch ein Waschmaschinenanschluss ist hier vorhanden.
Über eine massive Holztreppe im Wohnbereich erreichen Sie die obere Wohnebene. Ein kleiner Flur erschließt dort das gemütliche Schlafzimmer.
Zusätzlich bietet der Wohnbereich einen zweiten Ausgang ins Freie. Hier steht Ihnen ein eigener Gartenanteil zur individuellen Gestaltung zur Verfügung. Ein Schuppen für Gartengeräte und weitere Utensilien ist ebenfalls vorhanden.
Hinweis: Aus Rücksicht auf die Privatsphäre der derzeitigen Mieter können aktuell keine Innenaufnahmen bereitgestellt werden. Gerne laden wir Sie jedoch ein, sich bei einer persönlichen Besichtigung einen eigenen Eindruck von der Immobilie zu verschaffen.




