+++ Hinweis: Die Immobilie ist derzeit noch bewohnt. Die Innenbilder wurden mittels KI-basiertem digitalem Homestaging visualisiert und dienen ausschließlich der unverbindlichen Veranschaulichung. Es handelt sich um virtuelle Darstellungen; Abweichungen insbesondere bei Proportionen, Größen und Ausstattungsdetails sind möglich. Eine Haftung für die Übereinstimmung mit den tatsächlichen Gegebenheiten wird nicht übernommen. +++
Diese moderne Doppelhaushälfte wurde im Jahr 2018 in einem neu erschlossenen Baugebiet in Westermoordorf errichtet und überzeugt durch eine durchdachte Raumaufteilung sowie eine hochwertige Ausstattung.
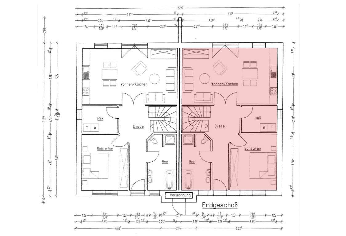
Auf rund 112 m² Wohnfläche bietet das Haus ein komfortables Wohnkonzept: Das Erdgeschoss besticht durch einen offenen Wohn- und Essbereich mit integrierter Küche und moderner, weißer Einbauküche. Ergänzt wird diese Ebene durch einen praktischen Abstellraum, ein großzügiges Schlafzimmer sowie ein stilvolles Badezimmer mit Badewanne, Dusche, WC und Waschtisch. Über die Diele gelangen Sie ins Obergeschoss, das zwei weitere Schlafzimmer sowie ein zusätzliches Duschbad mit Fenster bereithält. Der Dachboden ist über eine Einschubtreppe erreichbar und bietet zusätzlichen Stauraum.
Zum Objekt gehört ein pflegeleichter Grundstücksanteil von etwa 490 m². Ein Carport-Stellplatz, ein separater Geräteraum sowie eine einladende Terrasse mit Überdachung runden das Angebot ab.
Für ein angenehmes Wohnklima sorgt eine Fußbodenheizung in allen Räumen. Die dreifach verglasten Kunststofffenster sind mit Außenrollläden ausgestattet. Hochwertige Fliesen in Holzoptik finden sich in den Bädern, im Wohn- und Küchenbereich, im Flur sowie im Hauswirtschafts- und Heizungsraum, während die Schlafzimmer und der Flur im Obergeschoss mit Laminat ausgelegt sind.
Wenn das nicht genügend Gründe für eine Besichtigung sind?












