+++ Entdecken Sie diese Immobilie ganz bequem im virtuellen Rundgang! Den Link finden Sie im Inserat – gerne senden wir Ihnen den Rundgang auch auf Anfrage zusammen mit dem ausführlichen Exposé zu. +++
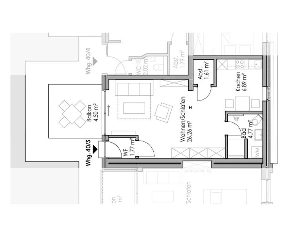
Mitten im lebendigen und charmanten Ortskern von Hage entsteht nach einer umfassenden Umgestaltung ein modernes und zukunftsorientiertes Wohn- und Geschäftshaus, das eine perfekte Verbindung aus urbanem Lebensstil und innovativer Technik bietet. Im Erdgeschoss wurde eine brandneue, kompakte 32 m² große Wohnung geschaffen, die sich perfekt für Singles oder Paare eignet. Im ersten und zweiten Obergeschoss wurde das Gebäude komplett neu strukturiert und beherbergt nun insgesamt 11 stilvolle und individuelle Wohnungen, die über zwei separate Eingänge erreichbar sind, um den Bewohnern mehr Privatsphäre und Komfort zu bieten.
Großen Wert wurde auf Nachhaltigkeit und Energieeffizienz gelegt. Zwei leistungsstarke Wärmepumpen sorgen für eine effiziente und umweltfreundliche Beheizung des Hauses, während eine große Photovoltaikanlage den erzeugten Strom direkt in das System einspeist. Diese moderne Technologie trägt maßgeblich zur Reduzierung der Heizkosten bei und sorgt für ein hohes Maß an Energieautarkie.
Die neu entstandenen Wohnungen bieten nicht nur modernsten Komfort, sondern auch eine Vielzahl hochwertiger Ausstattungsmerkmale:
Jede Wohnung erhält eine hochwertige Einbauküche. Käufer profitieren dabei von einem attraktiven Zuschuss von 50% (maximal 3.000 €) beim Kauf einer Küche über den renommierte Norder Küchenbauer „Küchen am Meer“.
Im Garderobenbereich jeder Wohnung wird jeweils ein hochwertiger Einbauschrank integriert, der für zusätzlichen Stauraum sorgt und die Räume noch funktionaler macht. Die Fenster sind mit einer erstklassigen 3-fach-Verglasung ausgestattet, die sowohl eine exzellente Wärme- als auch Schalldämmung bietet und so den Wohnkomfort erheblich steigert. Deckenspots sorgen für eine gleichmäßige Lichtverteilung und schaffen eine moderne, angenehme Atmosphäre in den Räumen.
Jede Wohnung ist zusätzlich mit einer Fußbodenheizung ausgestattet (außer im Abstellraum), die für behagliche Wärme sorgt und das Raumklima optimiert.: Die Bäder sind mit hochwertigen, großzügigen ebenerdigen Duschen und einem Urinal ausgestattet. Viele Bäder verfügen über Oberlichter und/oder Dachfenster, die für zusätzliches Tageslicht sorgen und den Raum hell und einladend wirken lassen. Fliesen in einer modernen, aber zeitlosen Optik verlegt mit dekorative Ornamentfliesen setzen stilvolle Akzente und verleihen den Bädern einen besonderen Charakter.
Die Böden in den Wohn- und Schlafbereichen sind mit Klebevinyl in der Optik „Eiche Natur“ in Dielenoptik ausgestattet, was sowohl für ein warmes und ansprechendes Ambiente sorgt als auch äußerst pflegeleicht ist. Weiße Stiltüren im 4-Kassetten-Design mit Edelstahldrückern fügen sich elegant in das Gesamtbild ein.
Jede Wohnung verfügt über einen gefliesten Abstellraum, der praktischen Stauraum bietet und somit für zusätzliche Ordnung sorgt. Zusätzlich erhält jede Wohnung einen eigenen Außenabstellraum, der weiteren Stauraum bietet und die Wohnfläche noch flexibler nutzbar macht.
Für die Gestaltung der Außenbereiche wurde auf hohe Qualität geachtet: Die Dachterrassen und Balkone sind mit langlebigen und witterungsbeständigen Bangkirai-Holzdielen ausgestattet, die für ein natürliches, edles Flair sorgen und gleichzeitig pflegeleicht und robust sind.
Im hinteren Bereich des Hauses steht ein Parkplatz zur Verfügung, wobei die Parkplätze derzeit nicht zugewiesen sind. Zudem gibt es die Möglichkeit, zwei Garagen zu einem Aufpreis anzumieten.
Das umgebaute Wohn- und Geschäftshaus in Hage wird mit seiner zentralen Lage, der nachhaltigen Energieversorgung und der hochwertigen Ausstattung den Ansprüchen moderner Mieter allemal gerecht.
Für die Wohnungen ist ausschließlich Vodafone als Internet- und Telefonanbieter verfügbar.
Vereinbaren Sie gerne einen Besichtigungstermin mit uns und überzeugen Sie sich live vor Ort.






